54 Beck Road, London, E8 4RE

Ref: Lot 22

Loading the bidding panel...

Registration Guide

Finance available on this property

Stamp Duty Land Tax Savings

Contact agent


Town & Country Property Auctions London
Town & Country Property Auctions London

Unconditional Lot


UNCONDITIONAL LOT Exchange and administration fee information: (plus fees) Buyers Administration Fee Applies upon the fall of the hammer, the Purchaser shall pay a 10% deposit (subject to minimum of £5,000, whichever is the greater) and a Buyers Administration Fee of £1200 + VAT and contracts are exchanged. The purchaser is legally bound to buy and the vendor is legally bound to sell the Property/Lot. The auction conditions require a full legal completion 28 days following the auction (unless otherwise stated in the legal pack or on the sales details). In addition to the purchase price, buyers may be required to pay additional fees, costs and charges - please refer to the legal pack.

Description

We are delighted to offer for sale this beautiful two bedroom Victorian townhouse which is now in need of some improvements.

Viewing is highly recommended to fully appreciate what this property has to offer, including the potential to re-model the first floor to create a third bedroom and potential to extend into the roof, subject to obtaining the relevant planning permissions.

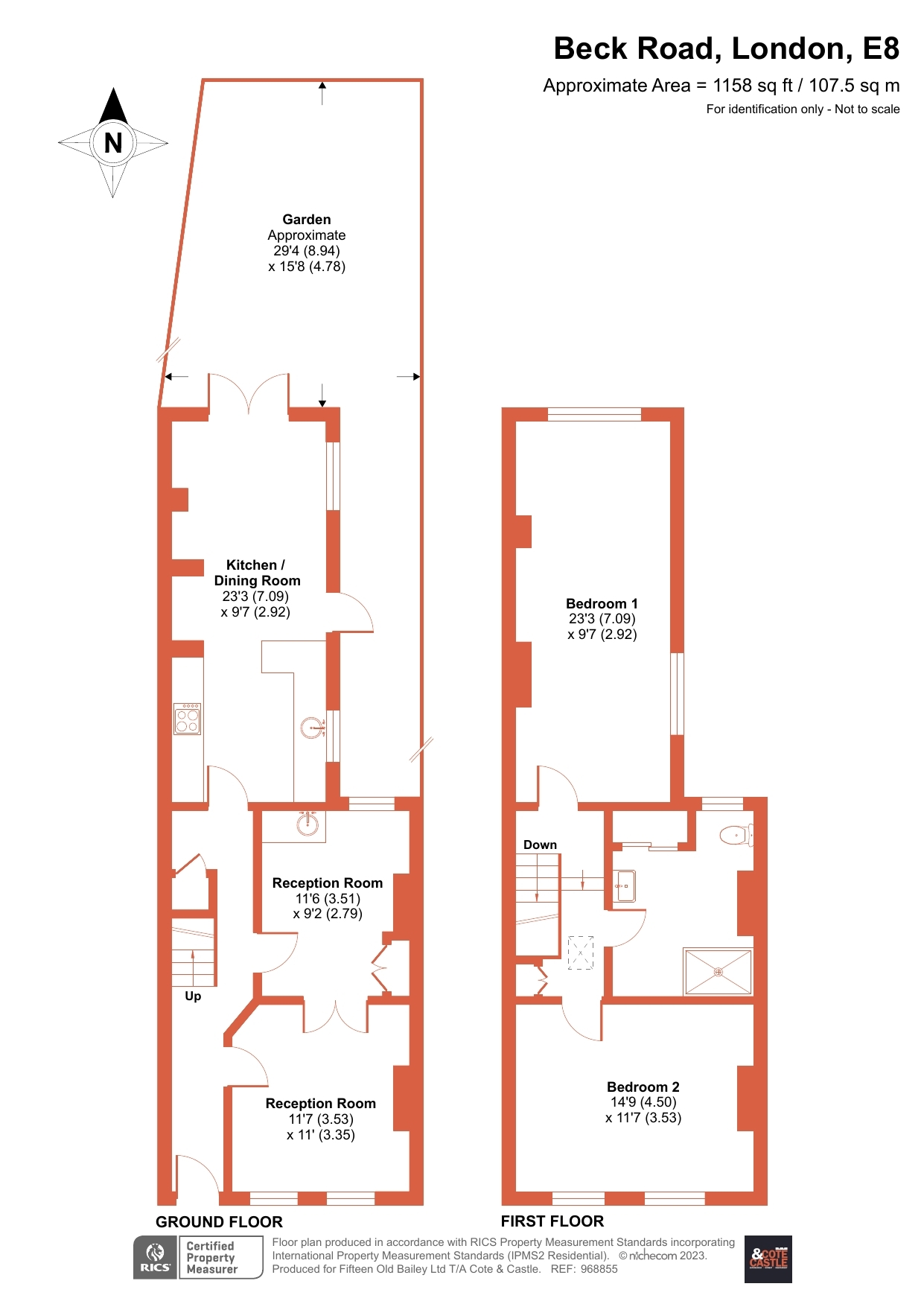
To the ground floor of the property is an entrance hallway giving access to two reception rooms and a spacious 23ft dining room/kitchen with doors onto the rear garden. On the first floor are two bedrooms and bathroom. Loft space.
Outside, is a garden to the rear.

Beck Road is a quiet residential street moments away from Broadway Market, Netil Market and London Fields green as well as having great transport links nearby leading directly into the City.

EPC

D

Tenure

Freehold

OFFERS INVITED!
28th September 2023 Online Auction
Bidding opens at 10:00am and closes at 12:00 noon
2 bedroom townhouse
In need of improvement
Potential to create a 3rd bedroom
Traditional features, loft space
Rear garden
Close to Broadway Market and Netil Market

Buyers Premium

Plus Fees

Council Tax Band

D


* The Guide Price given is an indication as to where the Reserve is currently set. The Reserve is the minimum price that the auctioneer is authorised by the vendor to sell the property for. It is subject to change throughout the marketing period. Where the Guide Price is a single figure, the current Reserve will not be more than 10% above that single figure, and where a price range is given (i.e. £50,000 - £55,000), the Reserve will not exceed the upper level of the range. It is not necessarily what the auctioneer expects it will sell for.

We would like to point out that all measurements, floor plans and photographs are for guidance purposes only (photographs may be taken with a wide angled/zoom lens), and dimensions, shapes and precise locations may differ to those set out in these sales particulars which are approximate and intended for guidance purposes only.

These particulars, whilst believed to be accurate are set out as a general outline only for guidance and do not constitute any part of an offer or contract. Intending purchasers should not rely on them as statements of representation of fact, but must satisfy themselves by inspection or otherwise as to their accuracy. No person in this firms' employment has the authority to make or give any representation or warranty in respect of the property.

Viewing: Due to the nature and condition of auction properties, the auctioneers highlight the potential risk that viewing such property carries and advise all to proceed with caution and take necessary requirements to ensure their own safety whist viewing any lots offered. Viewings are conducted entirely at the potential buyers own risk, these properties are not owned or controlled by Town & Country Property Auctions and the auctioneers will not be held liable for loss or injury caused while viewing or accessing the lot. Due to the nature of some auction properties, electricity may not be turned on, therefore viewing times are restricted. Viewers will need to bring their own lighting/ ladders if wanting to inspect cupboards, cellars and roof spaces. Some viewings are carried out by third party agents and we will endeavour to give appropriate notice should the published viewing time change. Town & Country Property Auctions will not be liable for any costs or losses incurred due to viewing cancellations or no shows.

All auctioneer fees and deposits stated are non-refundable. The deposit will be applied toward the final purchase price. Auctioneer fees, while not contributing to the purchase price, will still be included in the total chargeable consideration of the property when calculating Stamp Duty Land Tax, Land Transaction Tax, or Land and Buildings Transaction Tax (as applicable depending on whether the property is located in England, Wales, or Scotland).

Register for auction alerts

By subscribing here you agree to receive relevant emails, news and updates from Town & Country Property Auctions. You can unsubscribe at any time.

Register for auction alerts

Selling

No fuss, fast & free*

Town and Country offer a free selling service to a growing number of people choosing to sell their property quickly and easily through auction.

*Contact individual regions for cost

Buying

How to bid

Our buying at auction guide will help you throughout the process providing you with guidance to confidently secure your purchase.