59 Woolrich Street, Stoke-on-Trent, Staffordshire, ST6 3PQ

Ref: Lot 4

Loading the bidding panel...

Registration Guide

Finance available on this property

Stamp Duty Land Tax Savings

Office Contact

Unconditional Lot


UNCONDITIONAL LOT Exchange and administration fee information: (plus fees) Buyers Administration Fee Applies upon the fall of the hammer, the Purchaser shall pay a 10% deposit (subject to minimum of £5,000, whichever is the greater) and a Buyers Administration Fee of £1200 + VAT and contracts are exchanged. The purchaser is legally bound to buy and the vendor is legally bound to sell the Property/Lot. The auction conditions require a full legal completion 28 days following the auction (unless otherwise stated in the legal pack or on the sales details). In addition to the purchase price, buyers may be required to pay additional fees, costs and charges - please refer to the legal pack.

Description

*Guide Price £60,000-£85,000*

Offered for sale by auction is this 2 bedroom mid terrace property, which is currently let at £450 pcm/£5,400 pa, which equates to a 9% yield based on the lower guide price.

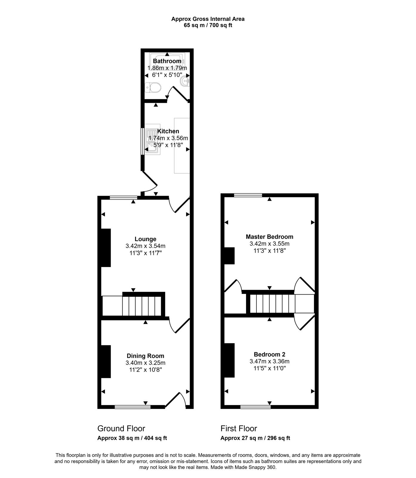
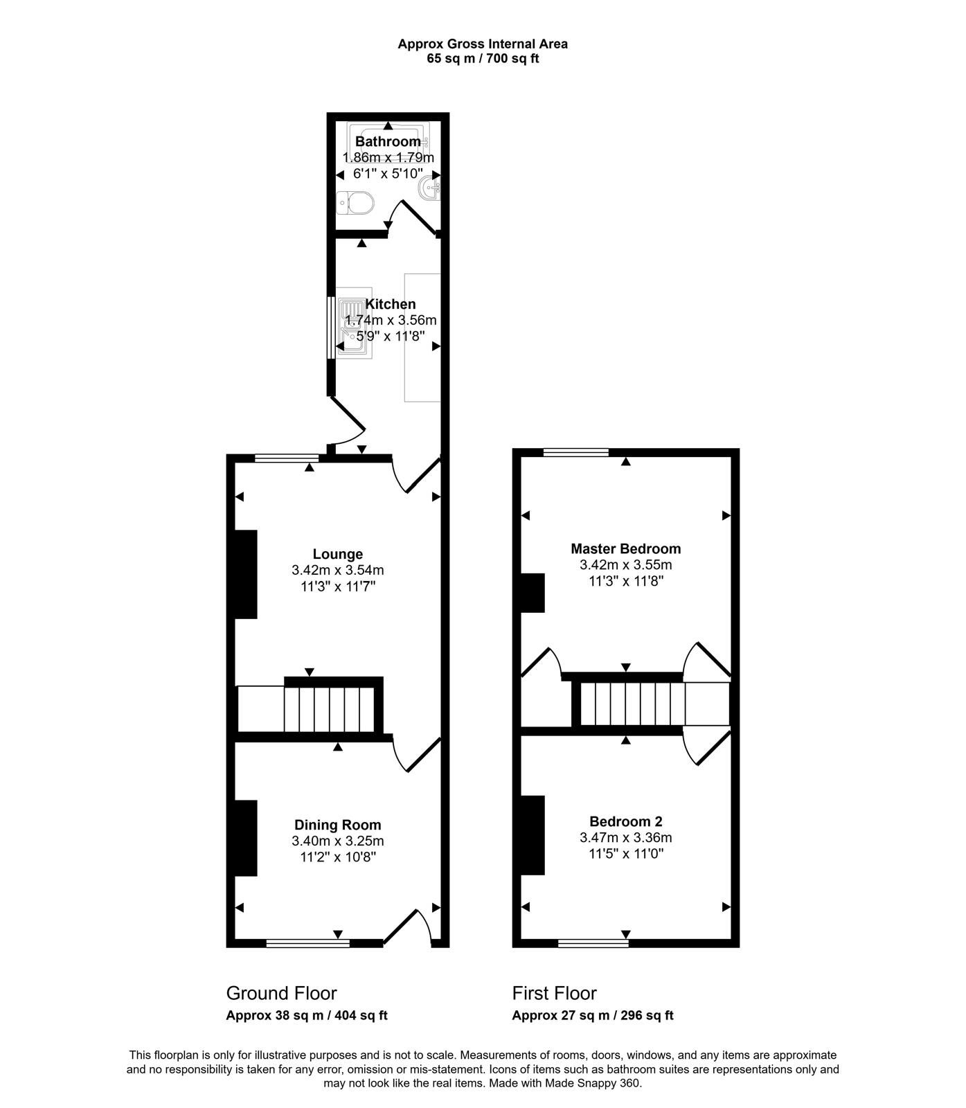
The accommodation comprises lounge, kitchen, dining room and bathroom to the ground floor, with two bedrooms to the first floor. Outside is an enclosed yard to the rear.

The property is well located, close to local shops and amenities.

Note: The Auctioneer has not internally inspected this property.

EPC

C

Tenure

Freehold

For Sale by Online Auction on 10 December 2025
Mid Terrace
2 Bedrooms
Rear Garden/Yard
Tenanted
Let at £450 pcm/£5,400 pa
Close to Amenities

Buyers Premium

Plus Fees

Disclaimers

Material information will be provided within the legal pack - to download this register your interest at tcpa.co.uk.

Bidding Security Deposit:
In order to bid, you are required to provide a bidding deposit of £2500 for each lot you wish to bid on, via the registration process.
A ‘hold’ is placed on this amount.
If your bid is successful on auction day, this amount will taken from your account and is included as part of your deposit payment for your property purchase.
If your bid is unsuccessful, the ‘hold’ is automatically removed and the funds are immediately released. The speed at which the funds will be back in your account will depend on your bank or building society.
Please note that bidding for a property is FREE. The bidding deposit forms part of your property purchase deposit and is therefore only taken from your account if successful.

Fees and Deposits:
All auctioneer fees and deposits stated are non-refundable. The deposit will be applied toward the final purchase price. Auctioneer fees, while not contributing to the purchase price, will still be included in the total chargeable consideration of the property when calculating Stamp Duty Land Tax, Land Transaction Tax, or Land and Buildings Transaction Tax (as applicable depending on whether the property is located in England, Wales, or Scotland).

Key Feature 1

2 Bed Mid Terrace

Key Feature 2

Tenanted - £450 pcm/£5,400 pa

Key Feature 3

Ideal Investment

Council Tax Band

A


* The Guide Price given is an indication as to where the Reserve is currently set. The Reserve is the minimum price that the auctioneer is authorised by the vendor to sell the property for. It is subject to change throughout the marketing period. Where the Guide Price is a single figure, the current Reserve will not be more than 10% above that single figure, and where a price range is given (i.e. £50,000 - £55,000), the Reserve will not exceed the upper level of the range. It is not necessarily what the auctioneer expects it will sell for.

We would like to point out that all measurements, floor plans and photographs are for guidance purposes only (photographs may be taken with a wide angled/zoom lens), and dimensions, shapes and precise locations may differ to those set out in these sales particulars which are approximate and intended for guidance purposes only.

These particulars, whilst believed to be accurate are set out as a general outline only for guidance and do not constitute any part of an offer or contract. Intending purchasers should not rely on them as statements of representation of fact, but must satisfy themselves by inspection or otherwise as to their accuracy. No person in this firms' employment has the authority to make or give any representation or warranty in respect of the property.

Viewing: Due to the nature and condition of auction properties, the auctioneers highlight the potential risk that viewing such property carries and advise all to proceed with caution and take necessary requirements to ensure their own safety whist viewing any lots offered. Viewings are conducted entirely at the potential buyers own risk, these properties are not owned or controlled by Town & Country Property Auctions and the auctioneers will not be held liable for loss or injury caused while viewing or accessing the lot. Due to the nature of some auction properties, electricity may not be turned on, therefore viewing times are restricted. Viewers will need to bring their own lighting/ ladders if wanting to inspect cupboards, cellars and roof spaces. Some viewings are carried out by third party agents and we will endeavour to give appropriate notice should the published viewing time change. Town & Country Property Auctions will not be liable for any costs or losses incurred due to viewing cancellations or no shows.

All auctioneer fees and deposits stated are non-refundable. The deposit will be applied toward the final purchase price. Auctioneer fees, while not contributing to the purchase price, will still be included in the total chargeable consideration of the property when calculating Stamp Duty Land Tax, Land Transaction Tax, or Land and Buildings Transaction Tax (as applicable depending on whether the property is located in England, Wales, or Scotland).

Loading legal documents ...

Register for auction alerts

By subscribing here you agree to receive relevant emails, news and updates from Town & Country Property Auctions. You can unsubscribe at any time.

Register for auction alerts

Selling

No fuss, fast & free*

Town and Country offer a free selling service to a growing number of people choosing to sell their property quickly and easily through auction.

*Contact individual regions for cost

Buying

How to bid

Our buying at auction guide will help you throughout the process providing you with guidance to confidently secure your purchase.